Skip to main content
Please wait...

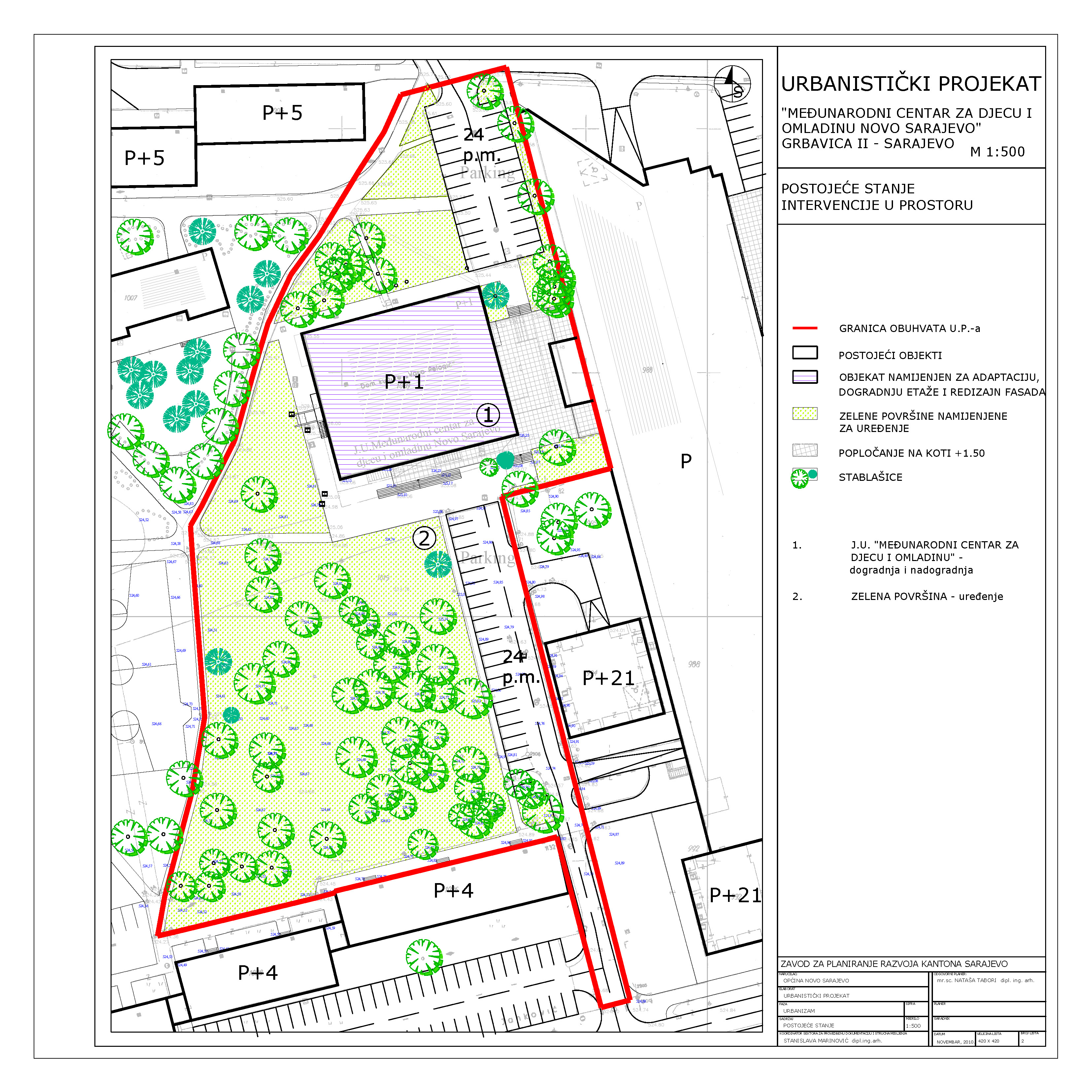
U.P. „Međunarodni centar za djecu i omladinu – Novo Sarajevo“

Zavod za planiranje razvoja Kantona Sarajevo je 2010. godine uradio Projektni program i Urbanistički projekat „Međunarodni centar za djecu i omladinu – Novo Sarajevo“ (Službene novine Kantona Sarajevo br. 20/10), čija je realizacija u završnoj fazi. Projektom su postojeće zelene površine sa južne i sjeverne strane objekta „Međunarodnog centra za djecu i omladinu“ zadržane, a unutar navedenih zelenih površina, između postojećih stabala, koja se zadržavaju, izvedene su planirane pješačke staze sa popločanim proširenjima („otocima“) oplemenjenim elementima urbanog mobilijara (klupe, voda, skulptura i sl.), te sadnja novih atraktivnih vrsta stablašica. Projektom se sadržaji „Međunarodnog centra za djecu i omladinu“ oplemenjuju komplementarnim sadržajima na otvorenom gdje se mogu realizirati ljene radionice, koncerti, izložbe, ali i svakodnevna igra i odmor građana ovog naselja i posjetilaca.